- Le rez-de-chaussée est presque exclusivement composé d'un seul espace à vivre. La cuisine, qui s'ouvre sur la salle à manger, s'organise autour d'un îlot central à la fois pratique et convivial. Un cellier permet de libérer l'espace.
- De grandes baies vitrées apportent au lieu une luminosité naturelle, pour un endroit où il fait bon vivre ensemble.
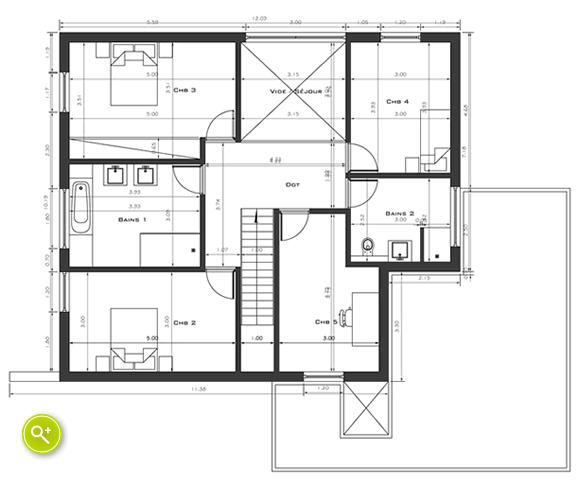
- À l'étage, des chambres spacieuses donnent à chacun son intimité.


     
Dgt 10.27 m2 10.27 m2
Chambre 2 15.00 m2 15.00 m2
Chambre 3 16.85 m2 16.85 m2
Chambre 4 11.79 m2 11.79 m2
Chambre 5 12.65 m2 12.65 m2
Bains 1 12.14 m2 12.14 m2
Bains 2 7.56 m2 7.56 m2
     
  86.26 m2 86.26 m2
  237.32 m2 188.57 m2