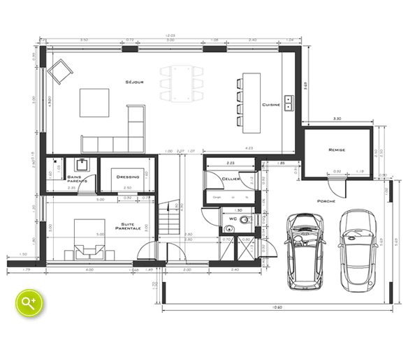
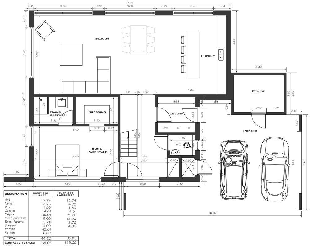
- Le rez-de-chaussée est presque exclusivement composé d'un seul espace à vivre. La cuisine, qui s'ouvre sur la salle à manger, s'organise autour d'un îlot central à la fois pratique et convivial. Un cellier permet de libérer l'espace.
- De grandes baies vitrées apportent au lieu une luminosité naturelle, pour un endroit où il fait bon vivre ensemble.
- À l'étage, des chambres spacieuses donnent à chacun son intimité.


     
Cellier 4.73 m2 4.73 m2
Hall 12.74 m2 12.74 m2
WC 1.80 m2 1.80 m2
Cuisine 14.81 m2 14.81 m2
Séjour 39.01 m2 39.01 m2
Suite parentale 15.00 m2 15.00 m2
Bains parents 3.76 m2 3.76 m2
Dressing 4.00 m2 4.00 m2
Porche 43.81 m2  
Remise 6.60 m2  
     
  146.26 m2 95.85 m2
  209.09 m2 158.68 m2