- Le rez-de-chaussée est presque exclusivement composé d'un seul espace à vivre. La cuisine, qui s'ouvre sur la salle à manger, s'organise autour d'un îlot central à la fois pratique et convivial. Un cellier permet de libérer l'espace.
- De grandes baies vitrées apportent au lieu une luminosité naturelle, pour un endroit où il fait bon vivre ensemble.
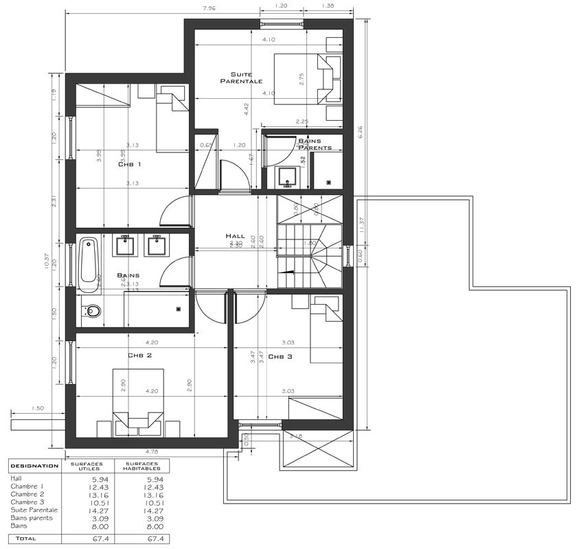
- À l'étage, des chambres spacieuses donnent à chacun son intimité.


     
Hall 5.94 m2 5.94 m2
Chambre 1 12.43 m2 12.43 m2
Chambre 2 13.16 m2 13.16 m2
Chambre 3 10.51 m2 10.51 m2
Suite parentale 14.27 m2 14.27 m2
Bains parents 3.09 m2 3.09 m2
Bains 8.00 m2 8.00 m2
     
  67.4 m2 67.4 m2
  190.15 m2 140.26 m2