- Le rez-de-chaussée est presque exclusivement composé d'un seul espace à vivre. La cuisine, qui s'ouvre sur la salle à manger, s'organise autour d'un îlot central à la fois pratique et convivial. Un cellier permet de libérer l'espace.
- De grandes baies vitrées apportent au lieu une luminosité naturelle, pour un endroit où il fait bon vivre ensemble.
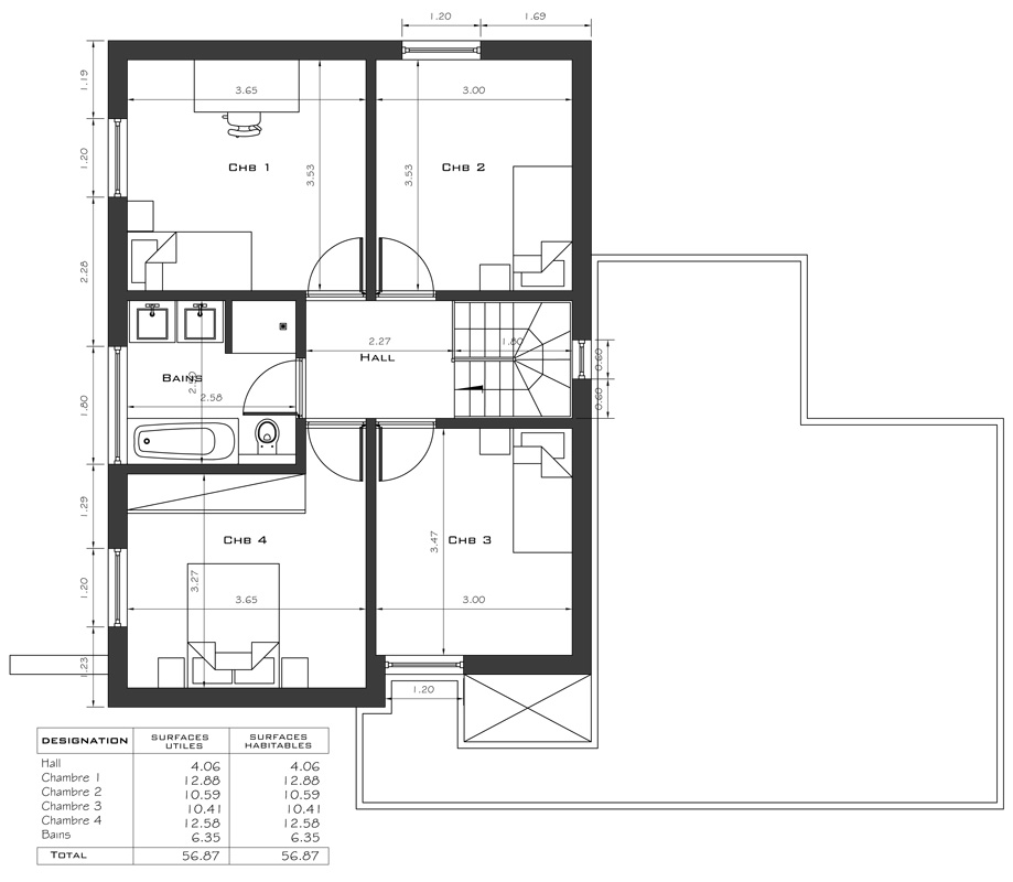
- À l'étage, des chambres spacieuses donnent à chacun son intimité.


     
Hall 4.06 m2 4.06 m2
Chambre 1 12.88 m2 12.88 m2
Chambre 2 10.59 m2 10.59 m2
Chambre 3 10.41 m2 10.41 m2
Chambre 4 12.58 m2 12.58 m2
Bains 6.35 m2 6.35 m2
     
  56.86 m2 56.86 m2
  168.39 m2 116.79 m2